Frisch Saniert und Luxus pur.
Hier finden Sie Ihr neues Zuhause auf 220 m² Wohnfläche, welches zuvor vom Manager einer berühmten britischen Band und zuletzt von einer deutschen Unternehmerfamilie bewohnt wurde. 7 Zimmer, 2 Badezimmer und zwei Toiletten.
Das Haus wurde in den letzten zwei Jahren renoviert und saniert. Folgende Arbeiten wurden durchgeführt: Neues Dach, neue Blechverkleidung und Regenrinnen (2022), Erweiterung des Gebäudes um zwei Wohnbereiche im Jahr 2024, einschließlich neuer Fenster, Heizung, Elektrik, Dachfläche und Fußböden. Neues Badezimmer mit neuer Wandverkleidung, Einbaudusche von Marc Design und neuer Designer-Badewanne + Handtuchheizkörper aus Chrom + Multimedia-Spiegelschrank mit Wetteranzeige, Beleuchtung und Uhr.
Das Gästebad ist neu (Wandverkleidung, Toilette, Badmöbel).
Neues Dachfenster in der Küche. Hochwertige Einbauküche von Ballingslöv Küchen mit Granitarbeitsplatte und frisch gestrichenen Fronten in perlweißer Spezialfarbe. Neuer Geschirrspüler.
Neuer Parkettboden in vielen Räumen. Neues dreifach verglastes Faltfenster im Wohnzimmer. App-Steuerung für aktive Hausbelüftung. Zwei Garagen (eine beheizt und über das Haus zugänglich), eine kalte Garage mit app-gesteuertem Garagentor und neuer Eingangstür.
Alle Holzelemente wurden rundum mit Herbol Profi-Farbe aus Deutschland gestrichen. Neue Fernwärmeanlage mit App-Steuerung, neue Wasserleitungen.
Der Boden im Wintergarten wurde abgeschliffen und neu versiegelt. Die Terrasse und ein seitlicher Zaun wurden erneuert. Am Ende des 980 m² großen Grundstücks befindet sich ein 15 m² großes Gartenhaus. Das Grundstück liegt direkt am Wald und ist rundum sehr gut geschützt und eingezäunt.
Neuer Sicherungskasten, komplette Alarm- und Videoanlage von Verisure, mit zusätzlicher 180°-Videoanlage (App-gesteuert) an der Vorderseite und im Gartenbereich. Der Zugang erfolgt über ein neues Yale-Elektroschloss mit Fernzugriff, Token- oder PIN-Öffnung und Gastmodus. Die Kellerfenster sind speziell gegen Einbruch gesichert.
Im gesamten Haus sind hochwertige, abschließbare Fenbstergriffe im Bauhaus-Stil installiert. Alle Schalter und Steckdosen sind mit Schneider-Glasrahmen ausgestattet. Hochwertige Echtholz-Fußleisten (12 cm) in Weiß sind im gesamten Haus verlegt. Überall wurden neue Echtholz-Innentüren eingebaut, mit neuen Türgriffen in den Wohnbereichen.
Glasfaser-Internet und -Telefon, einschließlich eines neuen Routers und POE-Netzwerkkabeln.
Lehnen Sie sich abends in Ihrem 20 m² großen Schlafzimmer zurück und genießen Sie Ihren eigenen Kamin. Entspannen Sie sich in der 6-Personen-Sauna (3,8 m²) mit angrenzendem Badezimmer. Wenn Sie sportlich sind, steht Ihnen ein kleiner Fitnessraum zur Verfügung, der zur Immobilie gehört, sowie ein Yogaraum, der auch als Gästezimmer mit Büro genutzt werden kann.
Das neu geschaffene Büro mit fast raumhohen Fenstern ermöglicht es Ihnen, auch im Winter bei Tageslicht zu arbeiten.
Im gesamten Haus wurden neue, hochwertige Plissee-Jalousien angebracht. Es gibt zwei große Abstellräume.
Über das Haus:
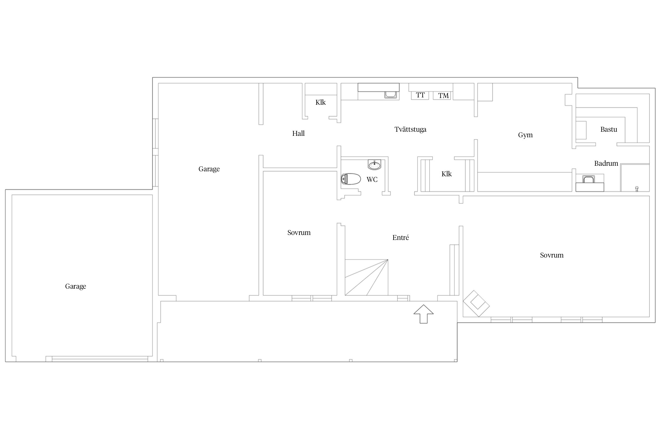
Sie betreten das Haus durch die elegante Eingangshalle mit Marmorboden. Im skandinavischen Design haben Sie rechts das Schlafzimmer mit Kamin und links ein Büro oder Gästezimmer. Im hinteren Bereich befindet sich die Waschküche mit einer Miele-Waschmaschine und einem Miele-Trockner sowie einem großen Trockenschrank für Jacken. Als nächstes kommen der Fitnessbereich und die Garderobe. Von dort aus haben Sie direkten Zugang zu einem Duschbad, das mit der Sauna verbunden ist.
Von diesem Bereich aus gelangt man auch in die Garage, in der sich eine Tischtennisplatte und eine Motorradwerkstatt befinden.
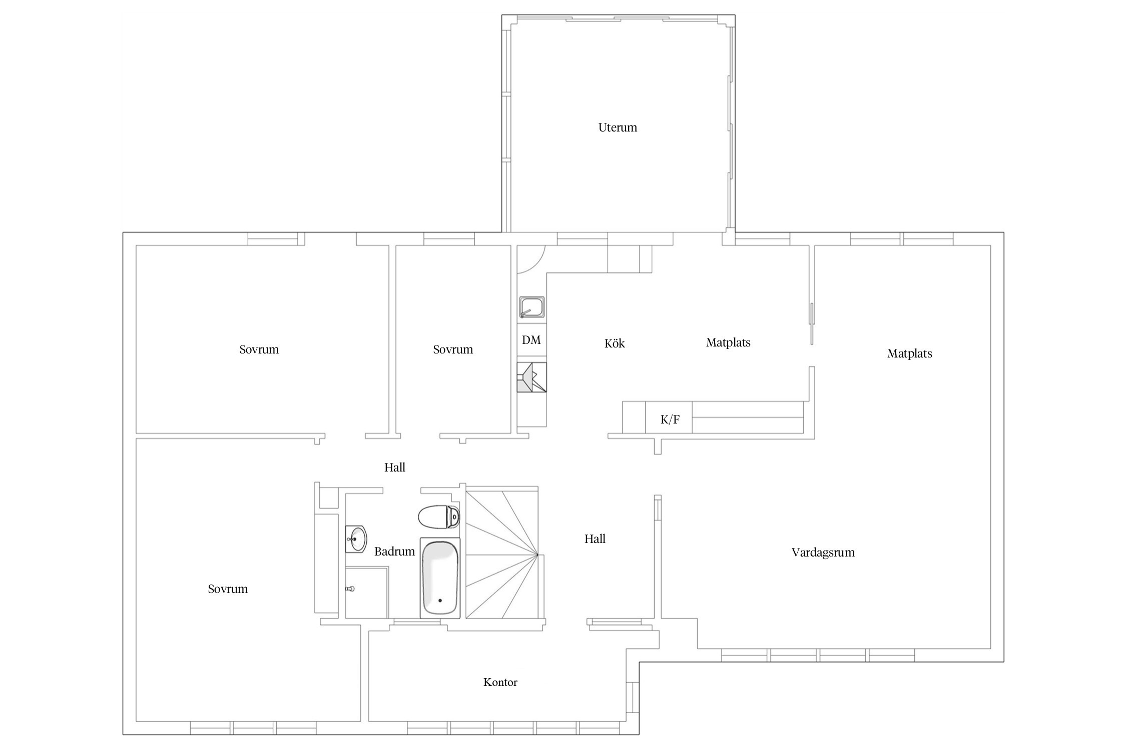
Im Obergeschoss befindet sich die hochwertige Granitküche mit abschließbarer Tür zum Wohn- und Essbereich. Dieser Bereich verfügt außerdem über 3 Schlafzimmer und ein Büro/Gästezimmer. Sie haben direkten Zugang zum Garten von einem der Schlafzimmer aus sowie von der Küche und dem neu renovierten Wintergarten (19,7 m²) aus. Der Wintergarten verfügt über eine eigene elektrische Heizung und eine neue Elektroinstallation.
Das absolute Highlight ist das große Wohnzimmer mit angrenzendem Essbereich. Dank der erhöhten Lage können Sie von Ihrer Couch aus den Sonnenuntergang über Hässleholm genießen. In nur zwei Minuten sind Sie im Wald oder können mit dem Fahrrad die wunderschöne Natur genießen. Nur 6 Minuten zum Bahnhof oder Stadtzentrum. Ihr Kind gelangt über eine verkehrsberuhigte Zone zur Grundschule (10 Minuten zu Fuß, 5 Minuten mit dem Fahrrad).
Es gibt zwei Parkplätze vor dem Haus + 2 Parkplätze in den beiden Garagen. Einkaufsmöglichkeiten …
Mit dem Kauf erhalten Sie außerdem alle Gartengeräte, einen Gartentisch, komplette und neue Sitzmöbel für den Wintergarten, einen Benzin-Rasenmäher mit Antrieb für Steigungen und einen Trimmer.
Wohnen Sie in dieser absoluten Premium-Immobilie und genießen Sie diesen Luxus. Auch perfekt für eine teilweise oder vollständige gewerbliche Nutzung geeignet.










































